Descrizione
In posizione tranquilla e soleggiata, a pochi passi da tutti i servizi, in un ordinato contesto residenziale di proprietà esclusive, grande casa unifamiliare di 7.5 locali edificata nel 1984, in ottimo stato di manutenzione, caratterizzata da ampi locali luminosi, finiture di pregio e una meravigliosa vista sul lago; un piccolo angolo di paradiso immerso nel verde, ideale per una famiglia che cerca una proprietà comoda, moderna e funzionale.
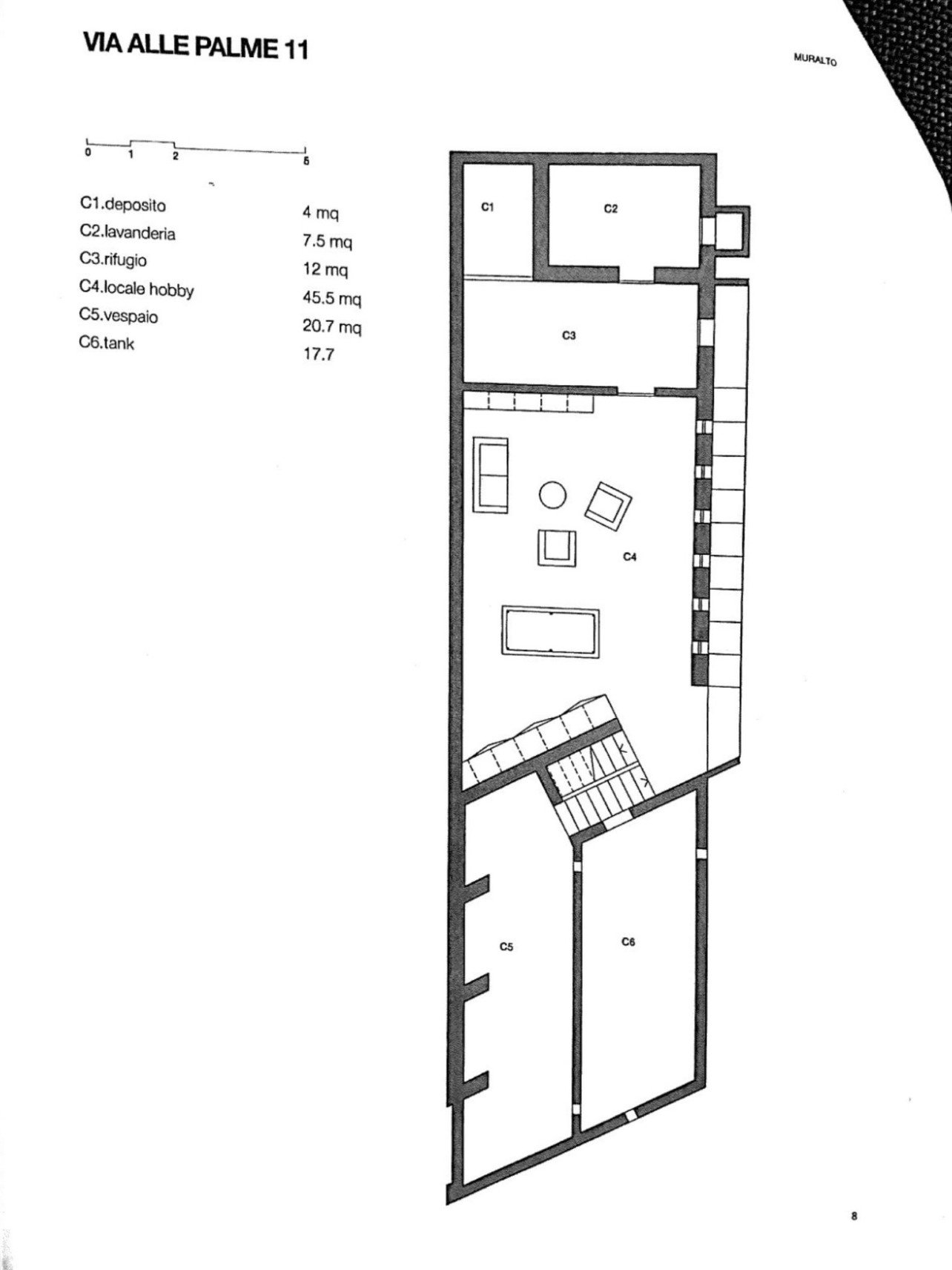
Distribuita su più livelli sapientemente progettati, questa dimora offre un’esperienza abitativa senza paragoni: ingresso su ampio locale open space completo di zona pranzo con cucina a vista, una comodissima dispensa e un luminoso soggiorno con camino e vista imperdibile sul lago; sullo stesso livello troviamo anche un bagno di servizio. Il mezzo livello inferiore ospita la camera padronale panoramica con bagno en suite, impreziosita da armadi su misura che offrono spazio e confort. Il piano inferiore, dedicato alla zona notte, è suddiviso tra due camere da letto e un ufficio, servirti da un comodo bagno. Scendendo all'ultimo livello troviamo una grande zona hobby con camino, il locale tecnico, la lavanderia ed il bunker. La casa offre spazi esterni ampi e due comode dispense, due parcheggi coperti e svariati posti auto scoperti, il tutto contornato da un giardino ed una terrazza per godere delle magnifiche serate al chiaro di luna.
Il sistema di riscaldamento è alimentato da caldaia a gasolio ed è distribuito da serpentine a pavimento, per le quali ogni anno viene eseguita manutenzione e pulizia; gli infissi sono in alluminio con doppi vetri.
I nostri esperti sono pronti ad assistervi con professionalità e dedizione, offrendovi una consulenza personalizzata; contattaci per organizzare una visita senza impegno e scoprire di persona questa straordinaria opportunità. Per ulteriori soluzioni residenziali e commerciali consulta il nostro portale: immoglobalswiss.ch
In ruhiger und sonniger Lage, nur wenige Schritte von allen Annehmlichkeiten entfernt, in einem gepflegten Wohnumfeld mit exklusiven Eigentumswohnungen, befindet sich dieses große Einfamilienhaus mit 7.5 Zimmern, das 1984 erbaut wurde und sich in hervorragendem Zustand befindet. Es zeichnet sich durch helle, großzügige Räume, hochwertige Ausstattungen und eine wunderbare Aussicht auf den See aus; ein kleines Paradies, das von Grün umgeben ist und ideal für eine Familie ist, die eine komfortable, moderne und funktionale Immobilie sucht.
Verteilt auf mehrere clever gestaltete Ebenen bietet dieses Zuhause ein unvergleichliches Wohnerlebnis: ein Eingangsbereich mit einem großzügigen offenen Raum, der eine Esszone und eine Sichtküche umfasst, eine sehr praktische Speisekammer sowie ein helles Wohnzimmer mit Kamin und unvergleichlichem Blick auf den See; auf derselben Ebene befindet sich auch ein Gäste-WC. Auf der darunter liegenden halben Ebene befindet sich das Schlafzimmer mit Panoramaausblick und eigenem Bad, bereichert durch maßgefertigte Einbauschränke, die Platz und Komfort bieten. Das Untergeschoss, das dem Schlafbereich gewidmet ist, ist aufgeteilt in zwei Schlafzimmer und ein Büro, das von einem bequemen Bad bedient wird. Im letzten Untergeschoss finden wir einen großen Hobbyraum mit Kamin, den Technikraum, die Waschküche und den Bunker. Das Haus bietet großzügige Außenbereiche, zwei praktische Speisekammern, zwei überdachte Parkplätze und zahlreiche Freiparkplätze, alles umgeben von einem Garten und einer Terrasse, um die wunderbaren Abende im Mondschein zu genießen.
Die Heizungsanlage wird durch einen Öl-Kessel betrieben und über Fußbodenheizungen verteilt, die jährlich gewartet und gereinigt werden; die Fenster bestehen aus Aluminium mit Doppelverglasung.
Unsere Experten stehen bereit, um Sie professionell und engagiert zu unterstützen und Ihnen eine individuelle Beratung anzubieten; kontaktieren Sie uns, um einen unverbindlichen Besichtigungstermin zu vereinbaren und diese außergewöhnliche Gelegenheit persönlich zu entdecken. Für weitere Wohn- und Gewerbelösungen besuchen Sie unser Portal: immoglobalswiss.ch.
In a quiet and sunny location, just a few steps from all amenities, within an orderly residential context of exclusive properties, this spacious single-family home features 7.5 rooms and was built in 1984. It is in excellent condition, characterized by large, bright rooms, high-quality finishes, and a wonderful view of the lake; a small corner of paradise immersed in greenery, ideal for a family seeking a comfortable, modern, and functional property.
Spread over several thoughtfully designed levels, this residence offers an unparalleled living experience: an entrance leading into a spacious open-plan area complete with a dining zone and an open kitchen, a convenient pantry, and a bright living room with a fireplace and stunning lake views. On the same level, there is also a guest bathroom. The lower half level houses the panoramic master bedroom with an en-suite bathroom, enhanced by custom-built wardrobes that provide space and comfort. The lower floor, dedicated to the sleeping area, is divided between two bedrooms and an office, served by a convenient bathroom. Descending to the last level, there is a large hobby area with a fireplace, a technical room, the laundry, and a bunker. The house offers ample outdoor spaces along with two convenient pantries, two covered parking spaces, and various uncovered parking spots, all surrounded by a garden and a terrace to enjoy magnificent moonlit evenings.
The heating system is powered by an oil boiler and is distributed through underfloor heating, which is maintained and cleaned annually; the windows are aluminum with double glazing.
Our experts are ready to assist you with professionalism and dedication, offering you personalized advice; contact us to arrange a no-obligation visit and discover this extraordinary opportunity for yourself. For additional residential and commercial solutions, please consult our portal: immoglobalswiss.ch